Fethiye Haftalık Kiralık Gulet - Mavi Tur Fiyatları - Nayk 2 | Nayk 2 Yatı


Nayk 2 Yatı | Gulet Kiralama | Lüks Plus

Göcek Koyları ( Bedri Rahmi Koyu - Kleopatra Hamam Koyu - Sarsala Koyu ) Haftalık Kiralık Gulet

Öne Çıkan Tekne Özellikleri

Boy - En
26 m - 7 m
Kişi Sayısı
12
Kabin
6
Klima
Gün içinde 6-8 saat

Açıklama

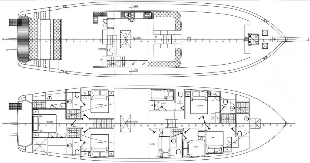
2022 yılında yapımı tamamlanarak denize indirilen Nayk 2, modern tasarımı ve konforlu yapısıyla Fethiye gulet kiralama seçenekleri arasında öne çıkan lüks plus sınıfında bir teknedir. 26 metre uzunluğa ve 7 metre genişliğe sahip olan gulet, 6 geniş ve rahat double kabiniyle toplamda 12 kişiye kadar misafir ağırlayabilmektedir. Her kabinde ev tipi wc, duşakabin, klima ve tv bulunan kabinlerde konuklara konforlu bir konaklama imkânı sunulmaktadır.

Teknenin arka güvertesinde geniş bir oturma alanı, büyük bir yemek masası ve kahvenizi ya da içkinizi keyifle yudumlayabileceğiniz bir dinlenme grubu yer almaktadır. Ön güvertede oturma alanı, güneşlenme minderleri ve açılır kapanır tente bulunurken, flybridge bölümünde ise oturma grubu, güneşlenme minderleri ve yemek masası mevcuttur. Gün batımının en güzel anlarını yaşayabileceğiniz bu alan, mavi yolculuk boyunca dinlenmek ve manzaranın tadını çıkarmak için idealdir.

Her detayı misafirlerin konforunu artırmak için özenle tasarlanan Nayk 2, adeta yüzen bir beş yıldızlı otel konforu sunmaktadır. Profesyonel ekibiyle hizmet veren teknede, deneyimli bir kaptan, lezzetli yemekler hazırlayan bir aşçı ve iki gemici bulunmaktadır. Fethiye haftalık kiralık gulet seçenekleri arasında en iyi alternatiflerden biri olan bu özel yat, konfor, lüks ve keyif dolu bir mavi tur deneyimi vaat etmektedir. Mavi tur fiyatları ve detaylı bilgi almak için tekne kiralama departmanımız ile iletişime geçebilirsiniz.

Genel Özellikler
Uzunluk 26 m
Genişlik 7 m
Seyir Hızı 8.0 Knots
Maksimum Hız 11.0 Knots
Mürettebat 1 Kaptan, 1 Aşçı, 1 Gemici, 1 Servis Personeli
Yunan Adaları Var 12 kişi
Yapım/Yenileme Yılı 2022 - 2026
Yenilenen Kısımlar Boya & Vernik, Dış Mefruşat, İç Mefruşat
Yelkenler
Klima Kullanımı Gün içinde 6-8 saat Gece Kullanıma Müsait - Ekstra
Kabin Dağılımları 6 Double
Kabin Sayısı 6
Kişi Sayısı 12

Arka Güverte

Oturma Grubu, Yemek Masası, Üst Tente, Yan Tente, Arka Platform

Ön Güverte

Oturma Grubu, Güneşlenme Minderleri, Açılır Kapanır Tente

Üst Güverte

Oturma Grubu, Güneşlenme Minderleri, Yemek Masası, Dümen, Açılır Kapanır Tente

Salon

Yemek Masası, Oturma Alanı

Kabin

Halı

Mutfak

Ocak, Fırın, Bulaşık Makinası

Ekipmanlar

Televizyon, Uydu

İçeçek Servisi

Türk Kahvesi, Filtre Kahve, Cezve, French Press, Kettle, Kokteyl Bardakları, Buz Makinası

  • Motor Gücü: 400.00 Hp
  • Motor Markası: Baudouin
  • Motor Adedi: 2
  • Yakıt Tankı Kapasistesi: 2000.00 Lt
  • Jeneratör Gücü: 32.00 kVA + 32 kVA
  • Jeneratör Markası: Marin
  • Jeneratör Adedi: 2
  • Yakıt Tüketimi: 70.00
  • Temiz Su Tankı: 5,000.00 Lt
  • Kirli Su Tankı: 4,000.00 Lt
  • Su Yapıcı: Lt
  • Güneş Paneli: Yok
  • Elektronik Sistemler: Radar, Telsiz, Gps, Pusula, Uydu Haberleşme Sistemi
Müzik Sistemi

Güverte, Salon

Müzik Sistemi Bağlantısı

Bluetooth, Usb

TV

Kabinler, Salon

TV Yayını

Uydu, Netflix

Masa Oyunları

Oyun Kağıdı, Okey, Tavla

İnternet Seçenekleri

Türk Sularında Limitsiz

Su Sporları

Tek Kişilik Kano, Paddle Board, Ringo, Yetişkin Su Kayağı, Amatör Maske, Snorkel, Palet, Amatör Balık Tutma Ekipmanları

Masaj Yatağı

Yok

Mavi Tur Talep Formu

Adınız, Soyadınız

Kişi Sayısı

Eposta Adresiniz

Telefon Numaranız

Notunuz

Günlük

Nisan Mayıs Haziran Temmuz Ağustos Eylül Ekim
1,358 € 1,358 € 1,515 € 2,358 € 2,358 € 1,929 € 1,429 €

Tekne Kiralamada Bilinmesi Gerekenler

Fiyata Dahil Olan Hizmetler

  • Yat kira bedeli
  • Transitlog (Liman çıkış belgesi)
  • Giriş - Çıkış Liman masrafları
  • Rota dahilinde yakıt
  • Personel Hizmetleri
  • Tekne kullanım suyu
  • 3. Şahıs ferdi kaza sigortası (mali mesuliyet)
  • Kabin içi kullanıma uygun mefruşat

Fiyata Dahil Olmayan Hizmetler

  • Havaalanı gidiş - dönüş transferleri
  • Yolcu isteğine bağlı giriş - çıkış özel marina giderleri
  • Tur programı harici yolcu isteğine bağlı liman giderleri
  • Tüketilen yiyecek, içecek ve temizlik malzemeleri
  • Kara turu ve ören yeri giriş ücretleri
  • Tekne imkanları dahilindeki su sporları yakıt bedeli
  • Dışarıdan kiralanan su sporları faaliyetleri
  • Yunan ada giriş - çıkış ve liman masrafları
  • KDV
  • Bahşiş
  • T.C. Kanunları dahilinde ada ve koy (öngörülen) demirleme bedelleri